Kopfzeile

neu — Einfamilienhaus mit großem Garten und Badezugang bei Groß-Enzersdorf

Haus zum Kauf in Groß-Enzersdorf (2301), Ziehrergasse / Objektnummer: 7573/6827

Haus zum Kauf in Groß-Enzersdorf (2301) 495.000 €

4 Zimmer

2 Badezimmer

124 m² Wohnfläche

999 m² Grundfläche

DuscheBadewanneGäste-WCAbstellraumGarageCarportStellplatzAußenstellplatzZentralheizungFliesenParkett

Ihr neues Zuhause am Donau-Oder-Kanal

Willkommen in Oberhausen, einem ruhigen Ortsteil von Groß-Enzersdorf in Niederösterreich – nur wenige Minuten vor den Toren Wiens. Das angebotene Einfamilienhaus bietet auf rund 124 m² Wohnfläche und großzügigen 999 m² Eigengrund alles, was ein modernes Familienleben braucht: helle Zimmer, eine offene Wohnküche mit Kamin, zwei Bäder, einen gepflegten Garten, Garage, Carport und als echtes Highlight einen privaten Schlüsselzugang zum Donau-Oder-Kanal.

Das 1976 solide errichtete Haus wurde laufend gepflegt und ist sofort bezugsfertig. Es richtet sich an Familien, Paare oder Heimwerker, die das Landleben in Wiennähe schätzen.

Highlights auf einen Blick

  • ca. 124 m² Wohnfläche auf 999 m² Eigengrund
  • 4 helle Zimmer – ideal für Familien oder mit Homeoffice
  • Offene Wohnküche mit Essplatz und Kamin
  • Zwei Badezimmer und zwei WCs – beide Bäder mit Fenster
  • Garage, Carport und zusätzliche Stellplätze
  • Werkstatt / Partyraum (separat beheizbar), Gartenhaus, Teilkeller
  • Privater Zugang zum Donau-Oder-Kanal mit Schlüssel – Bademöglichkeit inklusive
  • Ruhige Ortslage mit sehr guter Anbindung an Wien

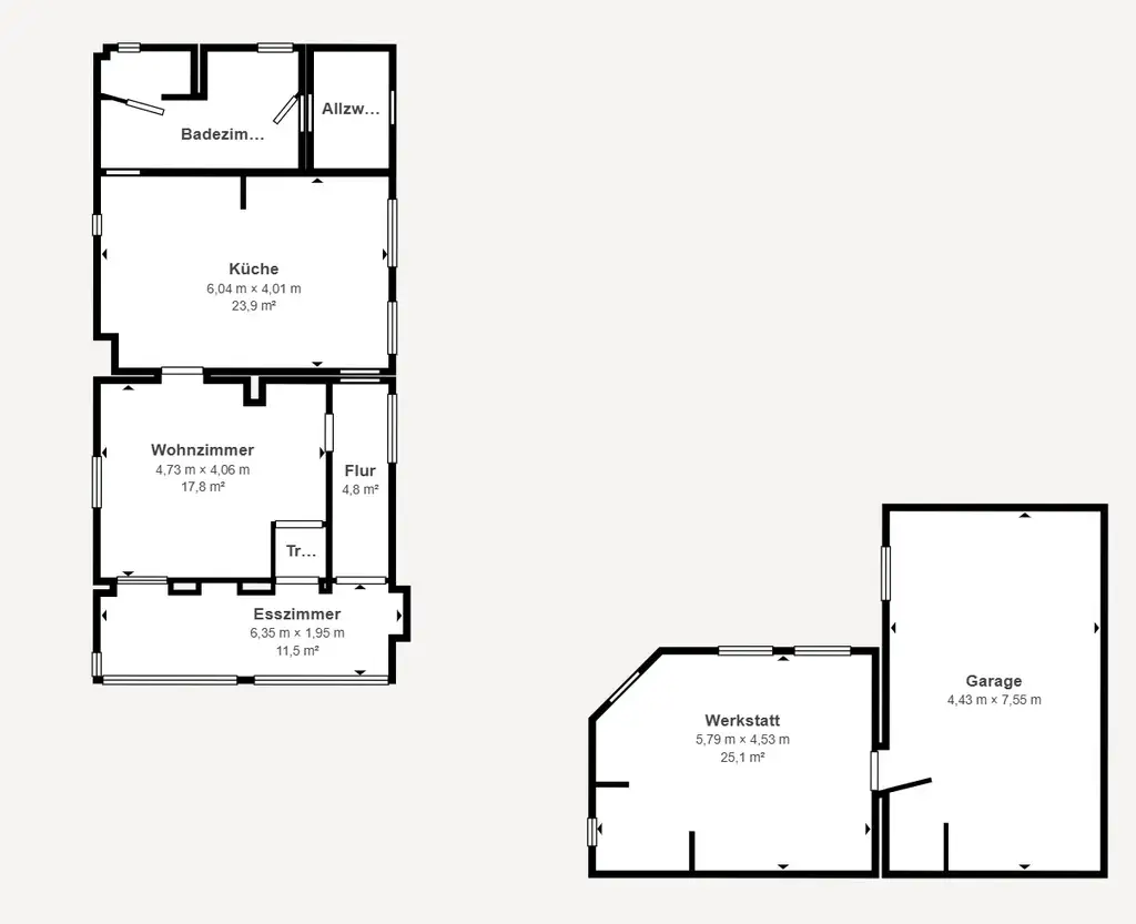
Raumaufteilung

Erdgeschoss

  • Vorraum
  • Offene Wohnküche mit Essplatz und Kamin
  • Badezimmer mit Dusche, Fenster und Handtuchheizung
  • Abstellraum mit separatem Ausgang
  • Separates WC mit Fenster und Waschmaschinenanschluss

Obergeschoss

  • 2 Schlafzimmer
  • Büro / zusätzliches Zimmer
  • Abstellraum
  • Badezimmer mit Wanne, Waschbecken, WC und Fenster

Garten & Nebengebäude

  • Gartenhaus
  • Garage
  • Werkstatt / Partyraum (separat beheizbar)
  • Carport und zusätzliche Stellplätze
  • Teilkeller
  • Schlüsselzugang zum Donau-Oder-Kanal mit Bademöglichkeit

Vereinbaren Sie noch heute einen persönlichen Besichtigungstermin – sehen und erleben ist immer eindrucksvoller als Lesen!

Der Vermittler ist als Doppelmakler tätig.

Ausstattung

Fliesen, Parkett, Öl, Kamin, Zentralheizung, Einbauküche, Badewanne, Dusche, Carport, Garage, Parkplatz, Abstellraum, Gartennutzung, Öffenbare Fenster, Gäste-WC, Doppel- / Mehrfachverglasung

Lage und Verkehrsanbindung

Ländliche Ruhe mit bester Wien-Anbindung Oberhausen ist ein Ortsteil der Stadtgemeinde Groß-Enzersdorf im Marchfeld, östlich von Wien. Die Lage verbindet ländliche Ruhe, grüne Natur und Nachbarschaftscharakter mit kurzen Wegen nach Wien, gut ausgebautem öffentlichen Verkehr und kompletter Nahversorgung. Naherholung direkt vor der Haustür Der Donau-Oder-Kanal liegt nur einen Katzensprung entfernt – Spaziergänge, Radrunden und Bademöglichkeit inklusive. Auch der Nationalpark Donau-Auen ist rasch erreichbar. Infrastruktur & Entfernungen • Verkehr: Bus < 500 m · Bahnhof < 4.500 m · U-Bahn < 6.000 m · Autobahn < 8.500 m • Nahversorgung: Supermarkt < 1.500 m · Bäckerei < 2.000 m · Einkaufszentrum < 2.500 m • Gesundheit: Arzt < 2.000 m · Apotheke < 2.000 m · Krankenhaus < 9.000 m • Bildung: Kindergarten < 2.500 m · Schule < 2.000 m · Höhere Schule < 6.000 m • Sonstiges: Bank, Post, Polizei jeweils < 2.500 m Alle Angaben sind Luftlinien-Schätzungen (Quelle: OpenStreetMap).

Grundrisse

Lageplan

Inhalt wird geladen
Preise
Kaufpreis
495.000,00 €
Vermittlungsprovision
Provision
3% des Kaufpreises zzgl. 20% USt.
Fakten
Objekttyp
Haus
Wohnfläche
124 m²
Grundfläche
999 m²
Toiletten
2
Baujahr
1976
Status
verfügbar
Energieeffizienz
Energieausweisart
Energiebedarfsausweis
HWB
199,00 kWh/(m²a)
HWB-Klasse
G
Manfred Kubicek

Adalbert Kubicek GmbH

Manfred Kubicek

akad. Immobilienkaufmann, GF

Virtuelle Tour