Kopfzeile

Moderne Doppelhaushälfte mit Garten in Gerasdorf - Erstbezug 2016

Haus zum Kauf in Gerasdorf (2201) / Objektnummer: 7573/6818

Haus zum Kauf in Gerasdorf (2201) 695.000 €

5 Zimmer

1 Badezimmer

114 m² Wohnfläche

121 m² Nutzfläche

15 m² Außenfläche

529 m² Grundfläche

TerrasseDuscheklimatisiertAbstellraumCarportStellplatzAußenstellplatzZentralheizungFußbodenheizungFliesen

Attraktive Doppelhaushälfte in Fertigteilbauweise (ELK).

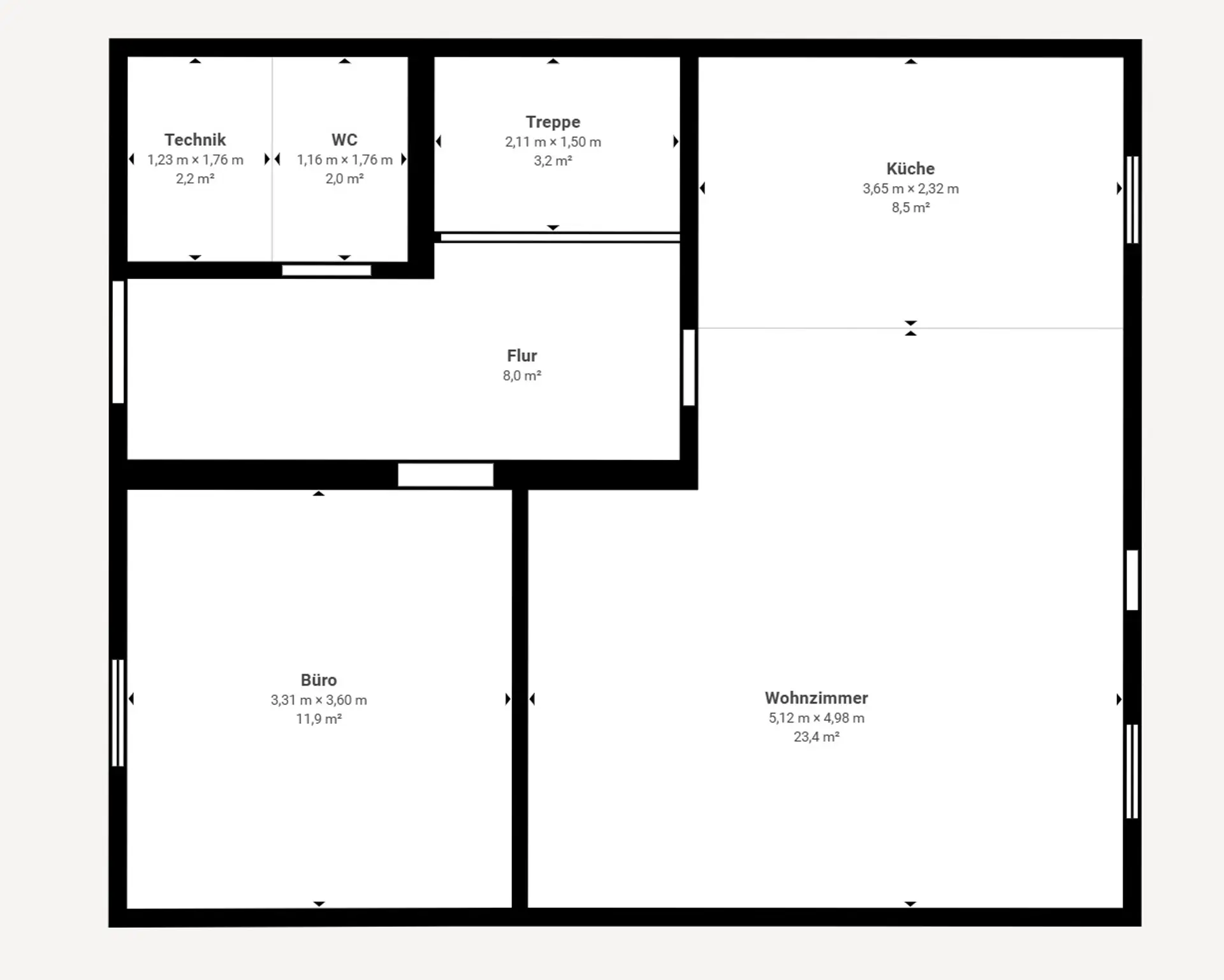
Das Haus verfügt über ca. 121m² Nutzfläche auf zwei Geschossen:

Im Erdgeschoss befinden sich eine offene Wohnküche (ca. 32 m2), ein Arbeitszimmer, ein WC mit Haustechnikraum sowie eine Diele mit Zugang zur ca. 15 m2 großen Terrasse und dem STARKL-gestalteten Garten mit zwei Hochbeeten und einer 30-jährigen Akazie als Schattenspender.
Im Obergeschoss liegen drei Zimmer (Galerie, Arbeits-/Schlafzimmer, Kinderzimmer) sowie ein Badezimmer mit WC.

Die Heizung erfolgt über eine Luftwärmepumpe mit Fußbodenheizung (einzeln regelbar) und Fancoils zur Klimatisierung.

Weitere Ausstattung: Fliegengitter mit Schiebetür, 36 dimmbare LED-Spots, hochwertige Fliesen und Vinylboden.

Ein Carport (ca. 30 m2) sowie ein Freistellplatz (ca. 13 m2) sind vorhanden.

Energieausweis: HWB 38,8 kWh/m2a (Klasse B), fGEE 0,78 (Klasse A+).

Der Vermittler ist als Doppelmakler tätig.

Ausstattung

Fliesen, Kunststoffboden, Fußbodenheizung, Zentralheizung, Einbauküche, Dusche, Carport, Parkplatz, Klimaanlage, Luftwärmepumpe, Abstellraum, Gartennutzung, Niedrigenergiehaus, Gebläsekonvektor (fan coil), Walmdach, Fertigteil, Doppel- / Mehrfachverglasung, Terrassennutzung

Lage und Verkehrsanbindung

Ruhige Wohnlage in Gerasdorf bei Wien, Bezirk Korneuburg. Gute Anbindung an Wien über die S1/S2 und öffentliche Verkehrsmittel. Die Umgebung bietet Nahversorgung, Schulen und Kindergärten sowie Naherholungsgebiete.

Grundrisse

Lageplan

Inhalt wird geladen
Preise
Kaufpreis
695.000,00 €
Vermittlungsprovision
Provision
3% des Kaufpreises zzgl. 20% USt.
Fakten
Objekttyp
Haus
Wohnfläche
114 m²
Terrassenfläche
15 m²
Nutzfläche
121 m²
Grundfläche
529 m²
Toiletten
2
Terrassen
1
Baujahr
2016
Status
verfügbar
Energieeffizienz
Energieausweisart
Energiebedarfsausweis
HWB
38,80 kWh/(m²a)
HWB-Klasse
B
FGEE
0,78
FGEE-Klasse
A+
Manfred Kubicek

Adalbert Kubicek GmbH

Manfred Kubicek

akad. Immobilienkaufmann, GF

Virtuelle Tour